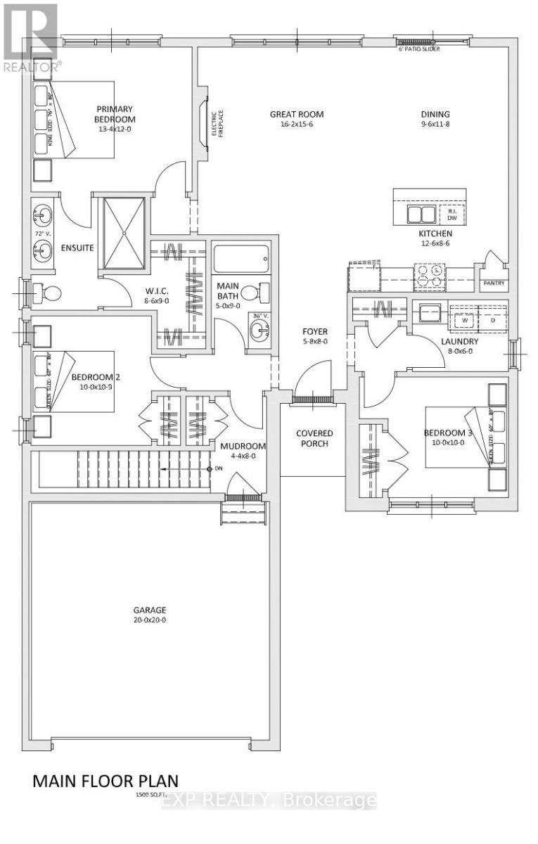
** TO BE BUILT - Introducing the Xception by XO Homes a modern bungalow that blends comfort, function, and flexibility. With two specifications available, the X Specs provide an affordable option with quality finishes, while the O Specs deliver a more luxurious upgrade for those seeking extra elegance. Offering 1,500 sq. ft. on the main floor, this home includes 3 bedrooms and an open-concept design that connects the kitchen, dining, and living spaces perfect for entertaining or relaxing with family. The primary suite features a walk-in closet and private ensuite, while two additional bedrooms provide plenty of room for family, guests, or a home office.Everyday convenience is built in with a separate laundry room and a functional mudroom that connects directly to the garage and to the lower staircase a smart detail for anyone considering an in-law suite or secondary living space in the basement.Designed with thoughtful layouts, quality craftsmanship, and the option to personalize with either X or O Specs, the Xception is a home that adapts to your lifestyle today and for years to come. Contact us for more information on available lots, models, and our full builder package. Come fall in love with Merritt Estates and build the home you've always dreamed of! Also keep in mind you can customize these models. (id:61499)
| MLS® Number | X13008774 |
| Property Type | Single Family |
| Community Name | Parkhill |
| Features | Cul-de-sac, Sump Pump |
| ParkingSpaceTotal | 6 |
| BathroomTotal | 2 |
| BedroomsAboveGround | 3 |
| BedroomsTotal | 3 |
| Age | New Building |
| Amenities | Fireplace(s) |
| ArchitecturalStyle | Bungalow |
| BasementDevelopment | Unfinished |
| BasementType | Full (unfinished) |
| ConstructionStyleAttachment | Detached |
| CoolingType | Central Air Conditioning |
| ExteriorFinish | Brick, Vinyl Siding |
| FireplacePresent | Yes |
| FireplaceTotal | 1 |
| FoundationType | Poured Concrete |
| HeatingFuel | Natural Gas |
| HeatingType | Forced Air |
| StoriesTotal | 1 |
| SizeInterior | 1100 - 1500 Sqft |
| Type | House |
| UtilityWater | Municipal Water |
| Attached Garage | |
| Garage |
| Acreage | No |
| Sewer | Sanitary Sewer |
| SizeDepth | 89 Ft |
| SizeFrontage | 67 Ft |
| SizeIrregular | 67 X 89 Ft |
| SizeTotalText | 67 X 89 Ft |
| ZoningDescription | R1 |
| Level | Type | Length | Width | Dimensions |
|---|---|---|---|---|
| Main Level | Bedroom | 4.064 m | 3.6576 m | 4.064 m x 3.6576 m |
| Main Level | Bedroom 2 | 3.048 m | 3.2766 m | 3.048 m x 3.2766 m |
| Main Level | Bedroom 3 | 3.048 m | 3.048 m | 3.048 m x 3.048 m |
| Main Level | Great Room | 4.9276 m | 4.7244 m | 4.9276 m x 4.7244 m |
| Main Level | Dining Room | 2.8956 m | 3.556 m | 2.8956 m x 3.556 m |
| Main Level | Kitchen | 3.81 m | 2.59 m | 3.81 m x 2.59 m |
| Main Level | Laundry Room | 2.4384 m | 1.8288 m | 2.4384 m x 1.8288 m |
| Main Level | Foyer | 1.7272 m | 2.4384 m | 1.7272 m x 2.4384 m |
| Main Level | Mud Room | 1.3208 m | 2.4384 m | 1.3208 m x 2.4384 m |
https://www.realtor.ca/real-estate/29616140/205-merritt-court-north-middlesex-parkhill-parkhill
Contact us for more information
Georgia Tusch
Broker
Paisley Smith
Salesperson
Compare listings
Compare